Featured image of post Steel Frame Drawings / 33 cad drawings for category:

Steel Frame Drawings / 33 cad drawings for category:

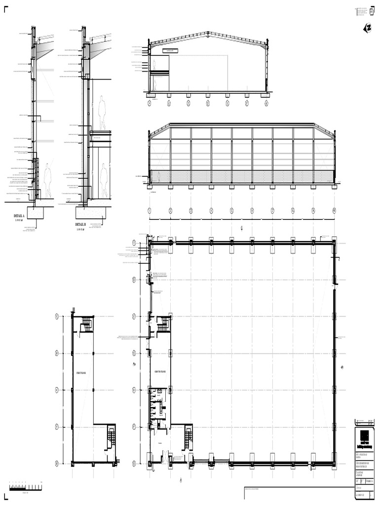
Ready made structural designed drawings for an industrial building with elevated crane and mezzanine floor.

Built with Hugo Cuy
Theme Reang Cuy v.%!(EXTRA string=2.0.1) designed by Ngopi24Jam.cuy